ICON Industrial Park
- Address :
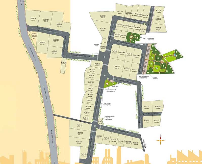
Icon Industrial Park, Opp Aditi Industries, Near Star Ganga Rice Mill, Ambapwadi Road, Ambap, Kolhapur
- Project Type :
- Machine Shops
- Foundries
- Warehouses
- Start Ups
- Godowns
- IT Enterprises
- Download Brochure
ICON INDUSTRIAL PARK - Industrial Plots for Machineshops, Foundries, Warehouses, Startups, Godowns, Processing Units, Manufacturing Units, I. T. Enetrprises
A unique project in Ambapwadi is a professional’s paradise on Pune Bangalore Highway. A project offering not just Industrial NA Plots, but provide the well-equipped space you were looking for to grow your business dreams. Indeed, the best option for your business growth near Kolhapur city, which is connected to Sangli, Satara, Sholapur, Pune, Konkan and South Karnataka by economical means of transport.
The city of Kolhapur, which has a rich legacy of successful businesses, is still the first choice of many businesses worldwide. Kolhapur city is an ideal location for businesses due to the availability of skilled manpower, abundant natural resources, and connectivity to several business hubs around. Be it a startup or an established business, ICON INDUSTRIAL PARK in Ambapwadi, Kolhapur is all set to welcome the new era of Industry 4.0.
